Количество спален - 4

Кол. сан. узлов - 2
Сауна - нет
Количество этажей - 2

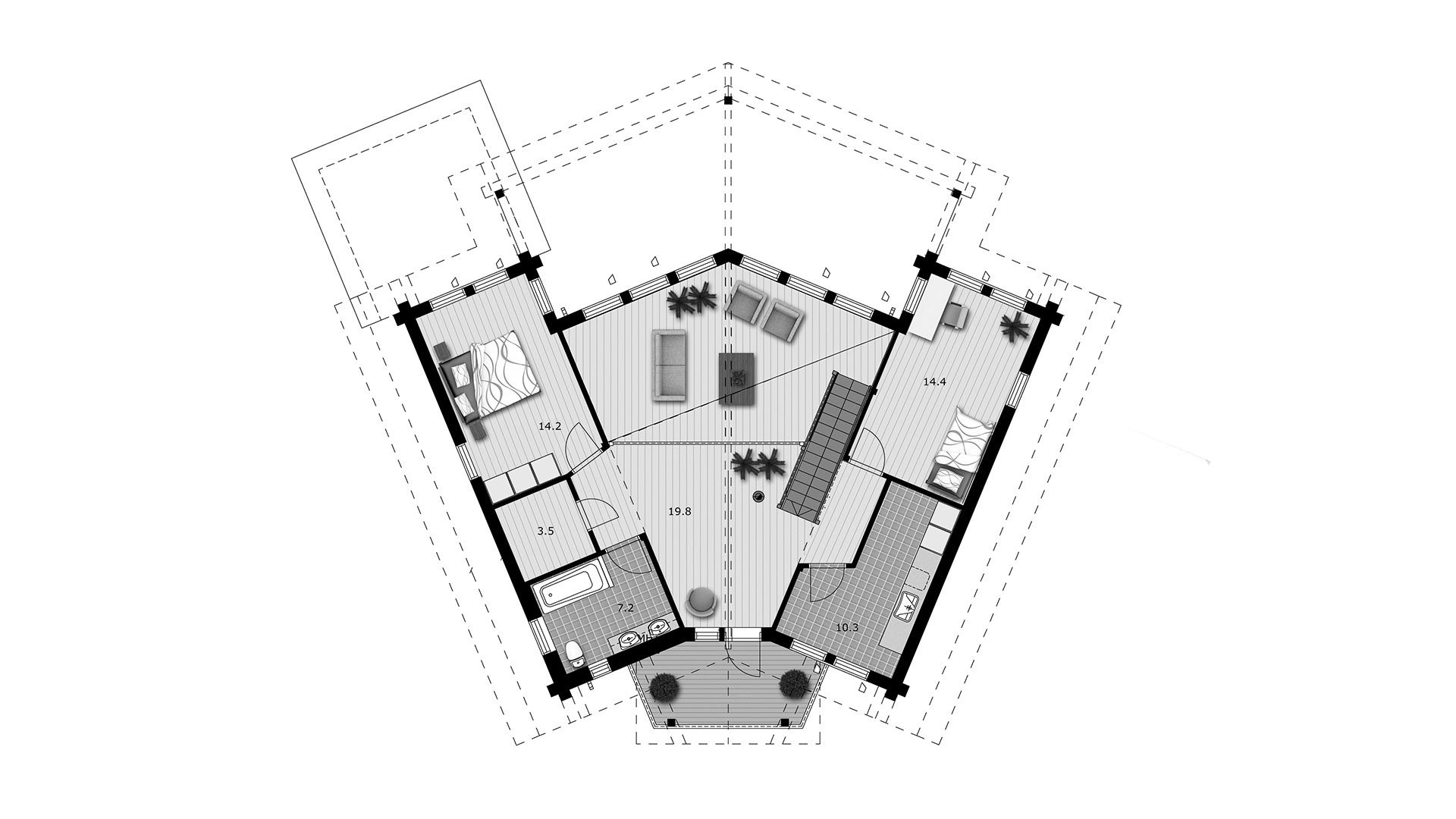
Холл-гостиная в дома полностью открыта. Поэтому окна, из которых открывается вид в нескольких направлениях, обеспечивают удивительную воздушность и яркость. Панорамный вид является приятным бонусом этого проекта.

ЕСЛИ У ВАС ЕСТЬ ВОПРОСЫ, ВЫ МОЖЕТЕ ПОЗВОНИТЬ НАМ ПО ТЕЛ. +7 (812) 363-16-70
ИЛИ ЗАПОЛНИТЬ ФОРМУ "ЗАДАТЬ ВОПРОС"

ВЫ МОЖЕТЕ ЗАКАЗАТЬ У НАС КАТАЛОГ, ЗАПОЛНИВ ФОРМУ "ЗАКАЗАТЬ КАТАЛОГ", И МЫ ВЫШЛЕМ ЕГО ВАМ В КРАТЧАЙШИЕ СРОКИ.


ООО "Woodhouse" ©2026