Количество спален - 4

Кол. сан. узлов - 2
Сауна - есть
Количество этажей - 2

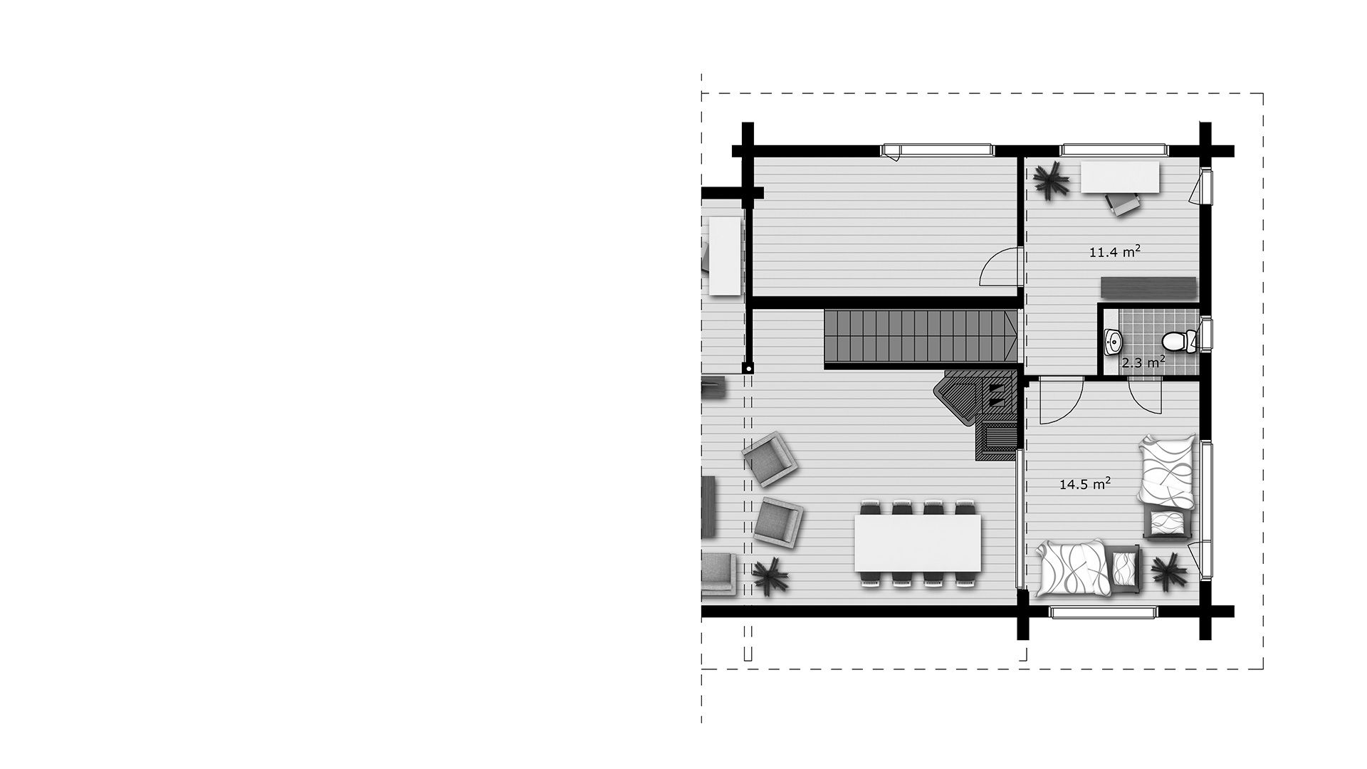
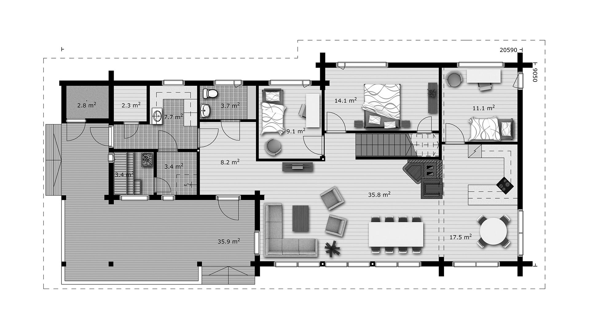
Этот проект — творение архитектора Ханну Хилтулы, родом из Куусамо. Отправной точкой для проектирования было желание заказчика иметь окна максимально большого размера. Это желание наиболее очевидно в гостиной, где панорамные окна шириной во всю гостиную обеспечивают близость к окружающей природе. Пейзажами можно наслаждаться как в сауне, так и за обеденным столом. Двускатная крыша, которая спускается в продольном направлении здания, достигает высоты более 6 метров.

ЕСЛИ У ВАС ЕСТЬ ВОПРОСЫ, ВЫ МОЖЕТЕ ПОЗВОНИТЬ НАМ ПО ТЕЛ. +7 (812) 363-16-70
ИЛИ ЗАПОЛНИТЬ ФОРМУ "ЗАДАТЬ ВОПРОС"

ВЫ МОЖЕТЕ ЗАКАЗАТЬ У НАС КАТАЛОГ, ЗАПОЛНИВ ФОРМУ "ЗАКАЗАТЬ КАТАЛОГ", И МЫ ВЫШЛЕМ ЕГО ВАМ В КРАТЧАЙШИЕ СРОКИ.


ООО "Woodhouse" ©2026