Количество спален - 3

Кол. сан. узлов - 1
Сауна - есть
Количество этажей - 1

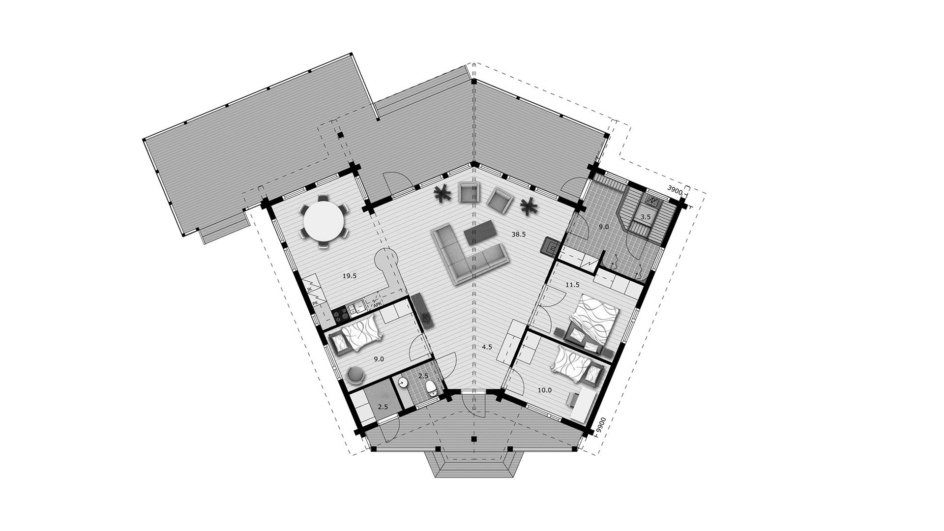
Флагман семьи Nuuna был спроектирован как дом для отдыха, эксплуатируемый круглый год. Многие заказчики влюбились в этот проект и представили ее как свой постоянный дом. Сауна, расположенная в передней части дома, дает прямой выход на террасу, где вы можете освежиться. Сауна также может быть легко размещена в задней части дома, а на ее месте может быть устроена главная спальня. Открытая планировка гостиной Nuuna очаровали многих. Nuuna площадью 85 м2 была признана лучшим проектом из бруса на ярмарке домов в Финляндии в 2011 году.

ЕСЛИ У ВАС ЕСТЬ ВОПРОСЫ, ВЫ МОЖЕТЕ ПОЗВОНИТЬ НАМ ПО ТЕЛ. +7 (812) 363-16-70
ИЛИ ЗАПОЛНИТЬ ФОРМУ "ЗАДАТЬ ВОПРОС"

ВЫ МОЖЕТЕ ЗАКАЗАТЬ У НАС КАТАЛОГ, ЗАПОЛНИВ ФОРМУ "ЗАКАЗАТЬ КАТАЛОГ", И МЫ ВЫШЛЕМ ЕГО ВАМ В КРАТЧАЙШИЕ СРОКИ.


ООО "Woodhouse" ©2026