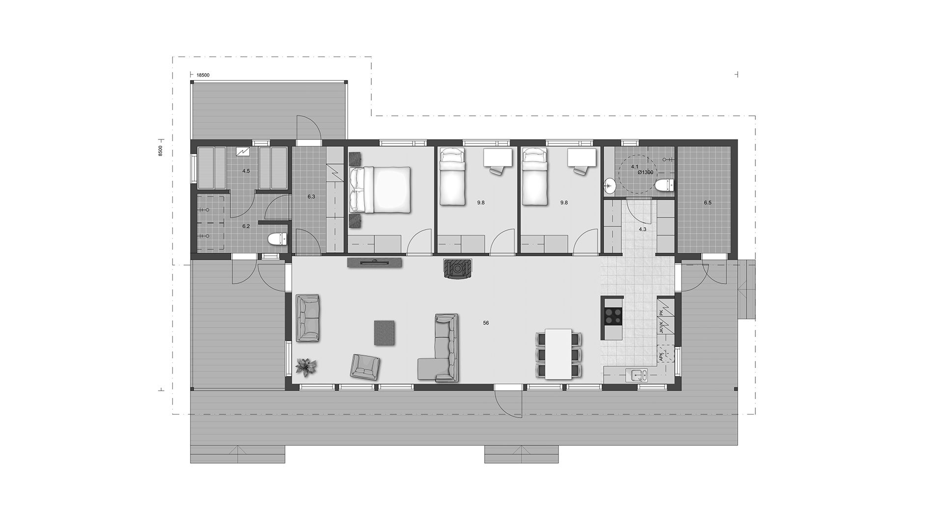
Количество спален - 3

Кол. сан. узлов - 2
Сауна - есть
Количество этажей - 1

Дом окружен террасами и застекленным патио. Просторная гостиная с кухней и жилыми зонами образуют общие пространства семьи в основной части дома. В этом доме можно вести функциональный повседневный образ жизни и комфортно проводить свободное время.

ЕСЛИ У ВАС ЕСТЬ ВОПРОСЫ, ВЫ МОЖЕТЕ ПОЗВОНИТЬ НАМ ПО ТЕЛ. +7 (812) 363-16-70
ИЛИ ЗАПОЛНИТЬ ФОРМУ "ЗАДАТЬ ВОПРОС"

ВЫ МОЖЕТЕ ЗАКАЗАТЬ У НАС КАТАЛОГ, ЗАПОЛНИВ ФОРМУ "ЗАКАЗАТЬ КАТАЛОГ", И МЫ ВЫШЛЕМ ЕГО ВАМ В КРАТЧАЙШИЕ СРОКИ.


ООО "Woodhouse" ©2026