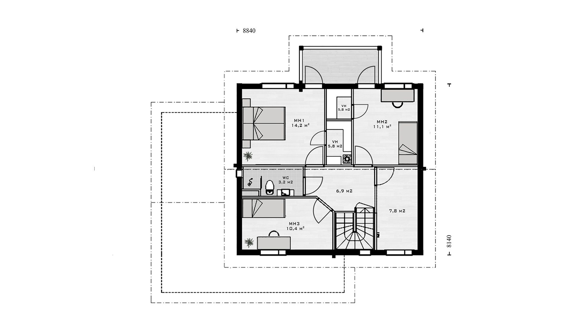
Количество спален - 3

Кол. сан. узлов - 2
Сауна - есть
Количество этажей - 2

Все началось с идеи куба. У куба было множество стеклянных поверхностей. Внутри куба гостиная, кухня и столовая находятся в одном и том же открытом пространстве. В результате, появился бревенчатый дом уникального вида.

ЕСЛИ У ВАС ЕСТЬ ВОПРОСЫ, ВЫ МОЖЕТЕ ПОЗВОНИТЬ НАМ ПО ТЕЛ. +7 (812) 363-16-70
ИЛИ ЗАПОЛНИТЬ ФОРМУ "ЗАДАТЬ ВОПРОС"

ВЫ МОЖЕТЕ ЗАКАЗАТЬ У НАС КАТАЛОГ, ЗАПОЛНИВ ФОРМУ "ЗАКАЗАТЬ КАТАЛОГ", И МЫ ВЫШЛЕМ ЕГО ВАМ В КРАТЧАЙШИЕ СРОКИ.


ООО "Woodhouse" ©2026