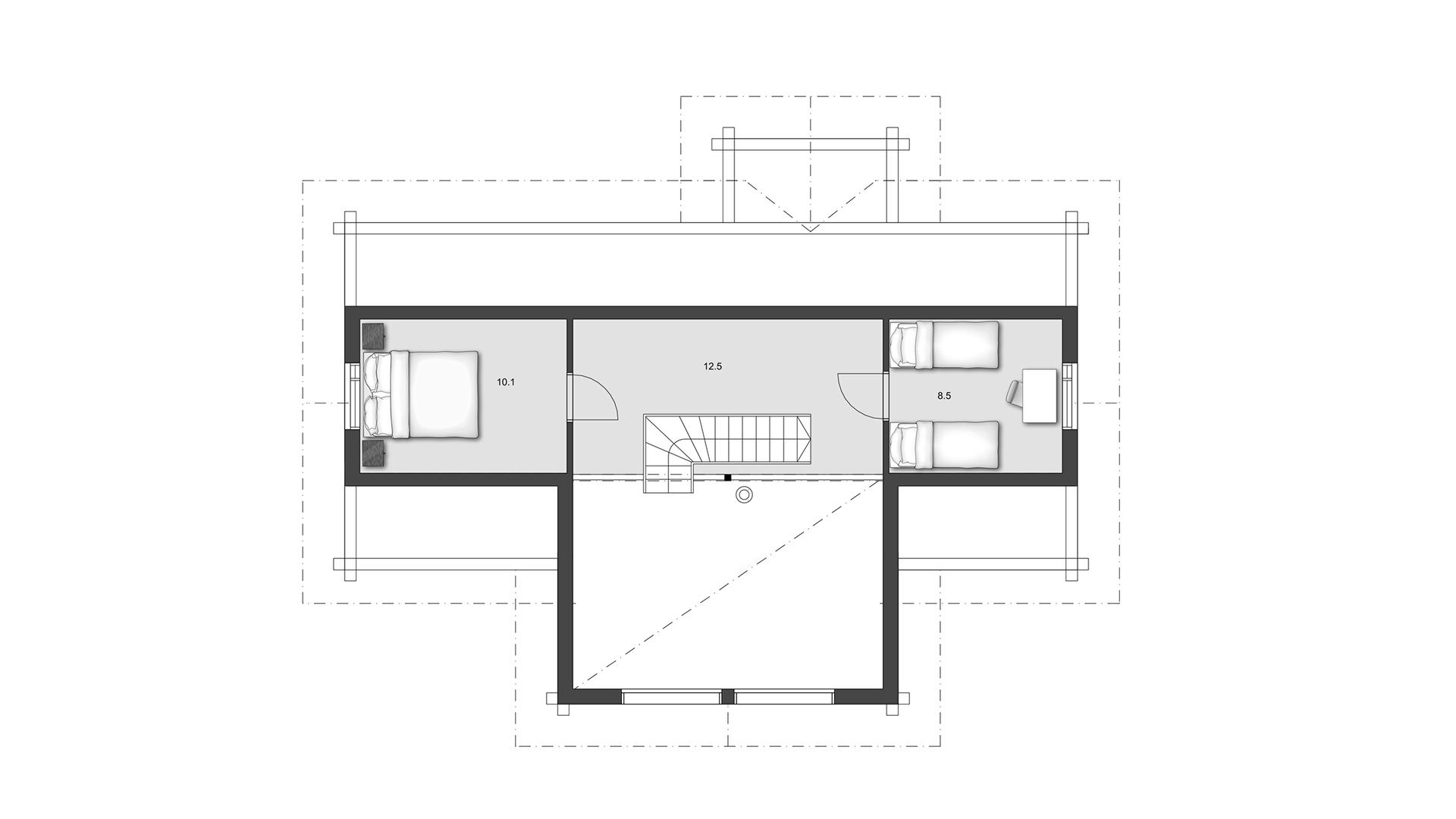
Количество спален - 4

Кол. сан. узлов - 1
Сауна - есть
Количество этажей - 1,5

Alppila 128 источает дух мудрого бревенчатого дома. Открытое пространство гостиной / обеденной зоны, доходящей до потолка, позволяет использовать большую площадь окон. Благодаря большим окнам природа вокруг становится частью быта.

ЕСЛИ У ВАС ЕСТЬ ВОПРОСЫ, ВЫ МОЖЕТЕ ПОЗВОНИТЬ НАМ ПО ТЕЛ. +7 (812) 363-16-70
ИЛИ ЗАПОЛНИТЬ ФОРМУ "ЗАДАТЬ ВОПРОС"

ВЫ МОЖЕТЕ ЗАКАЗАТЬ У НАС КАТАЛОГ, ЗАПОЛНИВ ФОРМУ "ЗАКАЗАТЬ КАТАЛОГ", И МЫ ВЫШЛЕМ ЕГО ВАМ В КРАТЧАЙШИЕ СРОКИ.


ООО "Woodhouse" ©2026