Вирккула 60-79

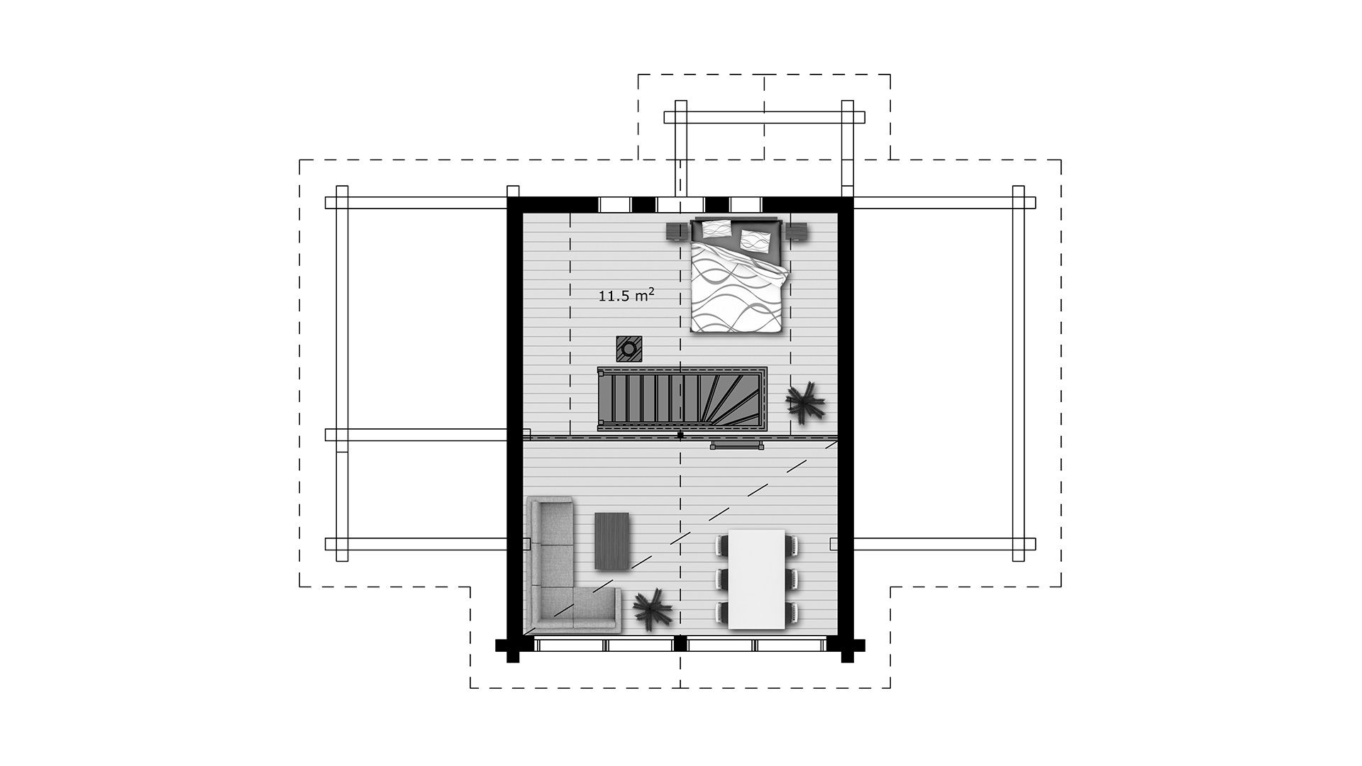
Количество спален - 3

Кол. сан. узлов - 1
Сауна - есть
Количество этажей - 2

Классический уютный финский дом прекрасно подойдет для любителей загородной жизни. Этот дом впечатляет количеством естественного света, который несут большие широкие окна. А наличие трёх спален обеспечит кофмортное размещение для большой семьи или гостей.

ЕСЛИ У ВАС ЕСТЬ ВОПРОСЫ, ВЫ МОЖЕТЕ ПОЗВОНИТЬ НАМ ПО ТЕЛ. +7 (812) 363-16-70
ИЛИ ЗАПОЛНИТЬ ФОРМУ "ЗАДАТЬ ВОПРОС"

ВЫ МОЖЕТЕ ЗАКАЗАТЬ У НАС КАТАЛОГ, ЗАПОЛНИВ ФОРМУ "ЗАКАЗАТЬ КАТАЛОГ", И МЫ ВЫШЛЕМ ЕГО ВАМ В КРАТЧАЙШИЕ СРОКИ.


ООО "Woodhouse" ©2026