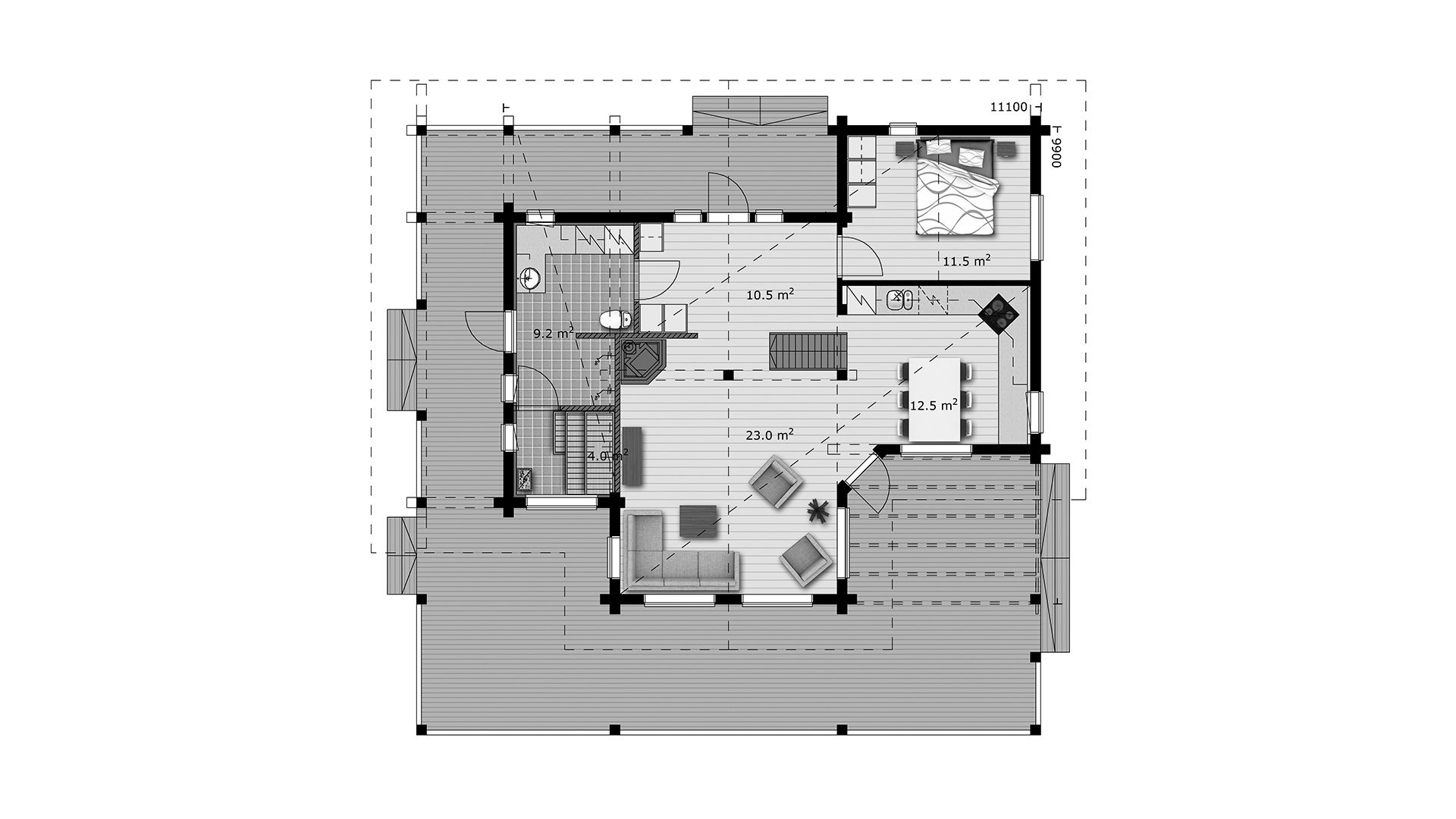
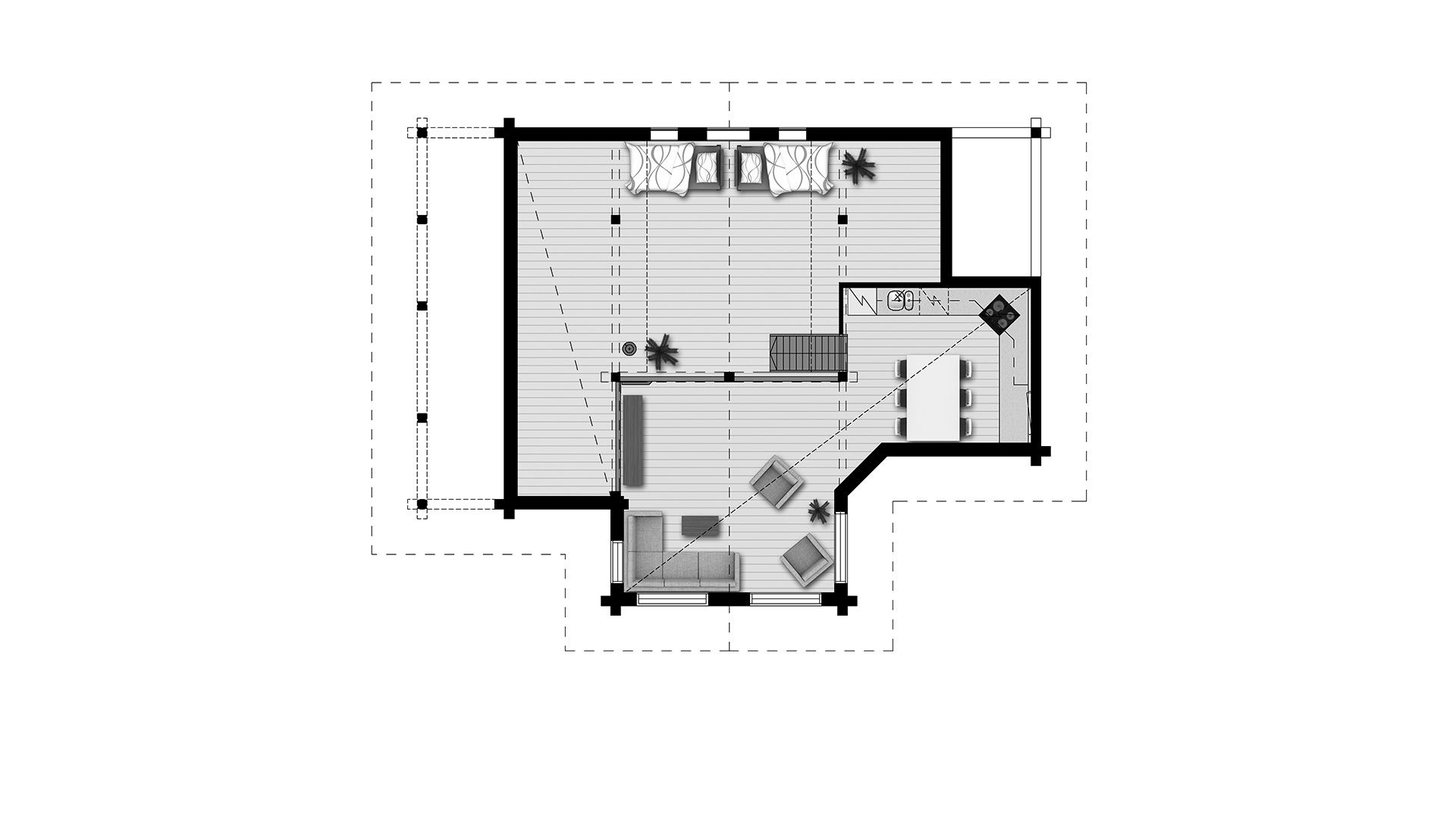
Толва 97

Количество спален - 2

Кол. сан. узлов - 1
Сауна - есть
Количество этажей - 2

Деревянный дом Tolva - это просторный и элегантный дом для отпуска. Яркость и ощущение пространства еще больше подчеркивается высотой гостиной и многочисленными окнами. Терраса просторная и продолжается почти по вокруг всего дома.

ЕСЛИ У ВАС ЕСТЬ ВОПРОСЫ, ВЫ МОЖЕТЕ ПОЗВОНИТЬ НАМ ПО ТЕЛ. +7 (812) 363-16-70
ИЛИ ЗАПОЛНИТЬ ФОРМУ "ЗАДАТЬ ВОПРОС"

ВЫ МОЖЕТЕ ЗАКАЗАТЬ У НАС КАТАЛОГ, ЗАПОЛНИВ ФОРМУ "ЗАКАЗАТЬ КАТАЛОГ", И МЫ ВЫШЛЕМ ЕГО ВАМ В КРАТЧАЙШИЕ СРОКИ.


ООО "Woodhouse" ©2026