Саапунки 87

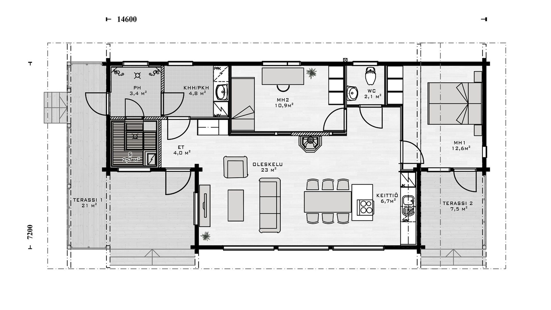
Количество спален - 2

Кол. сан. узлов - 1
Сауна - есть
Количество этажей - 1

Светлая и просторная гостиная в доме приглашает вас провести время вместе с близкими и полюбоваться пейзажами, которые открываются из больших окон. Вечерами приятно проводить время на террасе, которая соединена со спальней, и расслабиться после напряженного дня, наслаждаясь природой.

ЕСЛИ У ВАС ЕСТЬ ВОПРОСЫ, ВЫ МОЖЕТЕ ПОЗВОНИТЬ НАМ ПО ТЕЛ. +7 (812) 363-16-70
ИЛИ ЗАПОЛНИТЬ ФОРМУ "ЗАДАТЬ ВОПРОС"

ВЫ МОЖЕТЕ ЗАКАЗАТЬ У НАС КАТАЛОГ, ЗАПОЛНИВ ФОРМУ "ЗАКАЗАТЬ КАТАЛОГ", И МЫ ВЫШЛЕМ ЕГО ВАМ В КРАТЧАЙШИЕ СРОКИ.


ООО "Woodhouse" ©2026