Нууна 37

Количество спален - 1

Кол. сан. узлов - 1
Сауна - есть
Количество этажей - 1

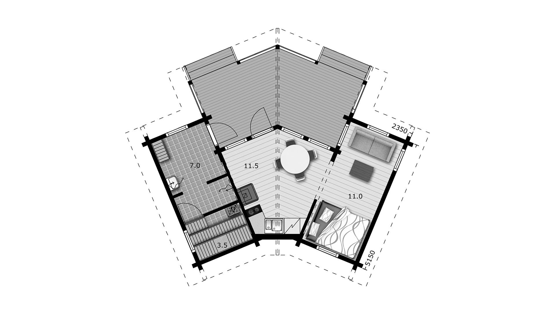
Бревенчатая вилла Nuuna кажется внутри намного больше, чем указано в цифрах - это такая просторная и светлая вилла! Версия виллы Nuuna площадью 85 квадратных метров была признана лучшим проектом загородного дома на Ярмарке недвижимости в Финляндии в 2011 году!

В высокой жилой зоне в центре здания расположены окна в два этажа. Пройдя в дом, вы попадаете в большую гостиную, которая, благодаря естественному свету, выглядит еще больше, чем она есть на самом деле.

ЕСЛИ У ВАС ЕСТЬ ВОПРОСЫ, ВЫ МОЖЕТЕ ПОЗВОНИТЬ НАМ ПО ТЕЛ. +7 (812) 363-16-70
ИЛИ ЗАПОЛНИТЬ ФОРМУ "ЗАДАТЬ ВОПРОС"

ВЫ МОЖЕТЕ ЗАКАЗАТЬ У НАС КАТАЛОГ, ЗАПОЛНИВ ФОРМУ "ЗАКАЗАТЬ КАТАЛОГ", И МЫ ВЫШЛЕМ ЕГО ВАМ В КРАТЧАЙШИЕ СРОКИ.


ООО "Woodhouse" ©2026