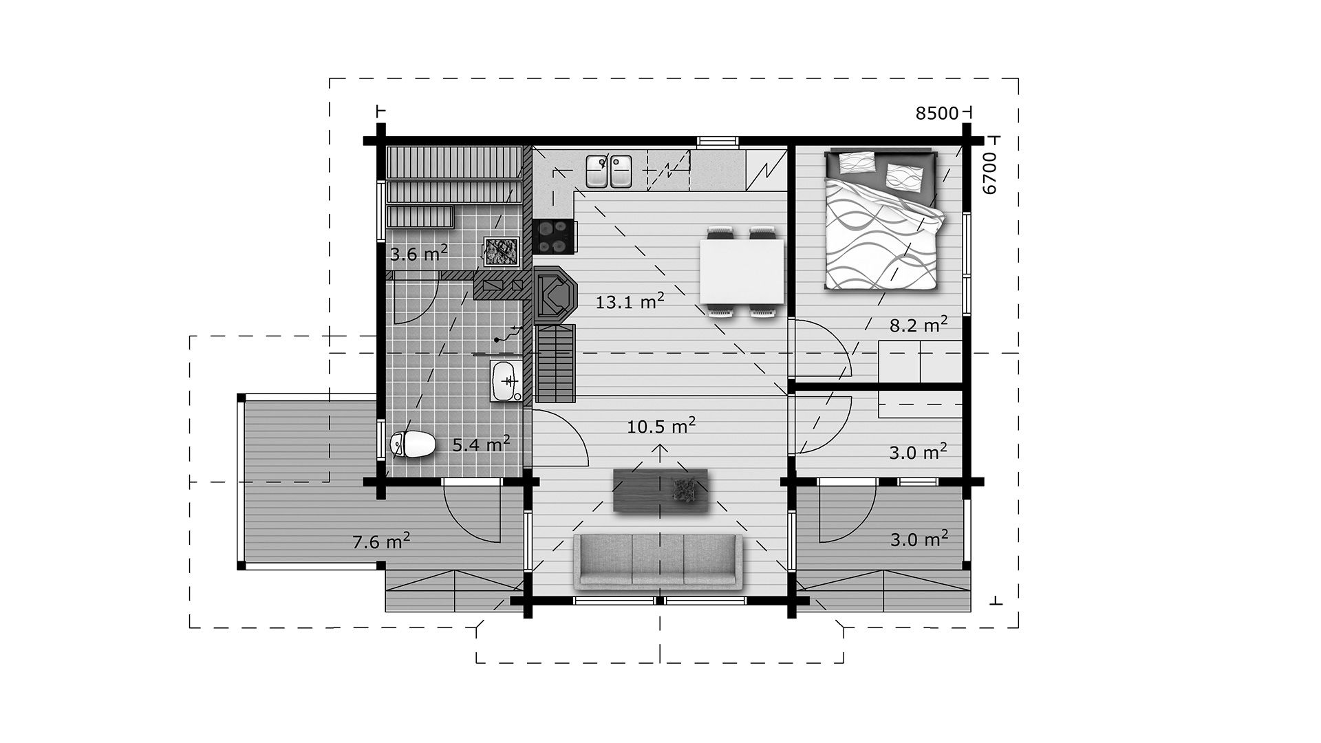
Маанинка 59

Количество спален - 1

Кол. сан. узлов - 1
Сауна - есть
Количество этажей - 2

Maaninka выглядит гораздо больше и внушительнее, чем его внешние размеры. Доступ естественного света делает помещения в доме просторнее, добавляя им объем.

ЕСЛИ У ВАС ЕСТЬ ВОПРОСЫ, ВЫ МОЖЕТЕ ПОЗВОНИТЬ НАМ ПО ТЕЛ. +7 (812) 363-16-70
ИЛИ ЗАПОЛНИТЬ ФОРМУ "ЗАДАТЬ ВОПРОС"

ВЫ МОЖЕТЕ ЗАКАЗАТЬ У НАС КАТАЛОГ, ЗАПОЛНИВ ФОРМУ "ЗАКАЗАТЬ КАТАЛОГ", И МЫ ВЫШЛЕМ ЕГО ВАМ В КРАТЧАЙШИЕ СРОКИ.


ООО "Woodhouse" ©2026