Куурна 95

Количество спален - 2

Кол. сан. узлов -1
Сауна - есть
Количество этажей - 2

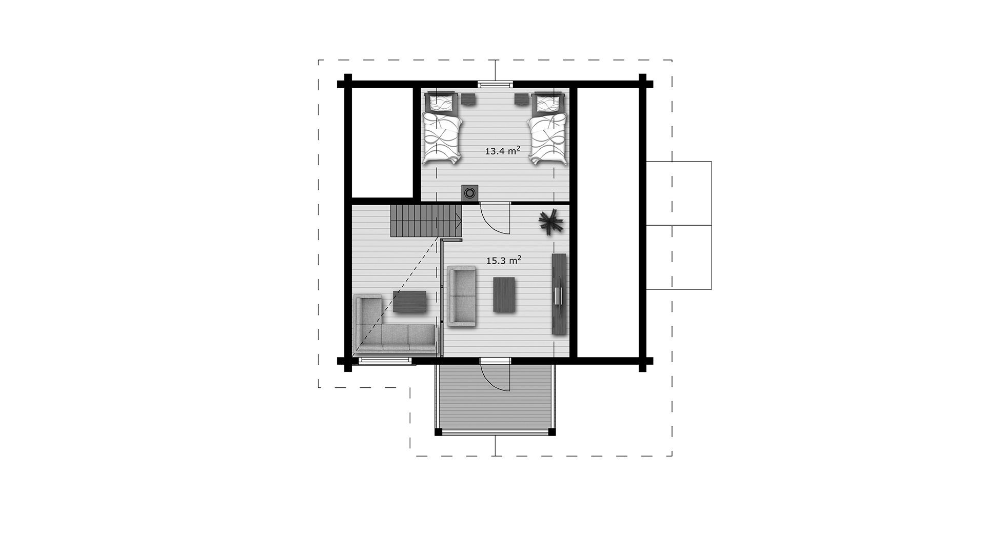
Деревянный дом Kuurna имеет жилую площадь на двух этажах. Большая спальня и гостиная наверху образуют отдельное пространство, где молодые люди, взрослые или гости могут в тишине ложиться спать или, возможно, смотреть телевизор, в то время как остальные члены семьи проводят вечера внизу. С большого балкона открывается потрясающий вид на окрестности.

ЕСЛИ У ВАС ЕСТЬ ВОПРОСЫ, ВЫ МОЖЕТЕ ПОЗВОНИТЬ НАМ ПО ТЕЛ. +7 (812) 363-16-70
ИЛИ ЗАПОЛНИТЬ ФОРМУ "ЗАДАТЬ ВОПРОС"

ВЫ МОЖЕТЕ ЗАКАЗАТЬ У НАС КАТАЛОГ, ЗАПОЛНИВ ФОРМУ "ЗАКАЗАТЬ КАТАЛОГ", И МЫ ВЫШЛЕМ ЕГО ВАМ В КРАТЧАЙШИЕ СРОКИ.


ООО "Woodhouse" ©2026