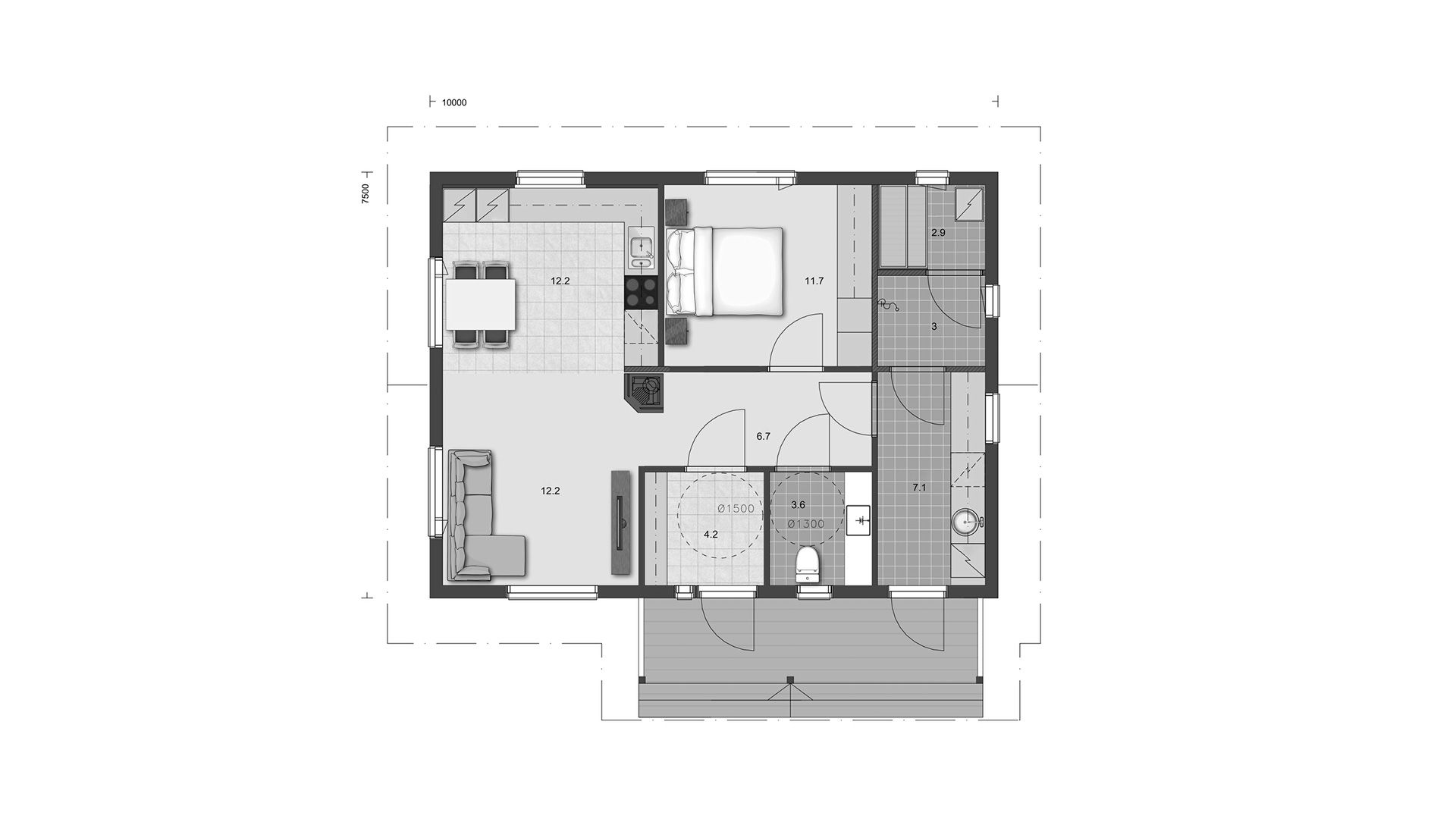
Енола 75

Количество спален - 1

Кол. сан. узлов - 1
Сауна - есть
Количество этажей - 1

Компактный и очень комфортный дом для семьи. Здесь есть все необходимое для комфортного проживания, как на долгое время, так и для поездки за город на выходные. Сауна, терраса, уютная спальня и гостиная, просторный санузел и удобная планировка точно не оставят Вас равнодушными.

ЕСЛИ У ВАС ЕСТЬ ВОПРОСЫ, ВЫ МОЖЕТЕ ПОЗВОНИТЬ НАМ ПО ТЕЛ. +7 (812) 363-16-70
ИЛИ ЗАПОЛНИТЬ ФОРМУ "ЗАДАТЬ ВОПРОС"

ВЫ МОЖЕТЕ ЗАКАЗАТЬ У НАС КАТАЛОГ, ЗАПОЛНИВ ФОРМУ "ЗАКАЗАТЬ КАТАЛОГ", И МЫ ВЫШЛЕМ ЕГО ВАМ В КРАТЧАЙШИЕ СРОКИ.


ООО "Woodhouse" ©2026